Venta departamento Belgrano

  • USD 85.000
Conde 2800 Belgrano, Belgrano R, Capital Federal

Descripción

En la prestigiosa zona de Belgrano, sobre Conde 2800.
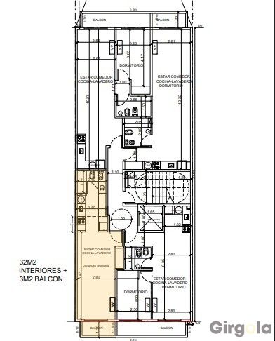
Este monoambiente en construcción. con Fecha de entrega estipulada: agosto2028
Ubicado en el tercer piso es una oportunidad única para quienes buscan un espacio moderno y luminoso. Con una superficie total de 35 m2, de los cuales 32 m2 son cubiertos, este inmueble se presenta como un refugio ideal para disfrutar de la tranquilidad y el confort que ofrece la zona. Su orientación norte permite la entrada de abundante luz natural, creando un ambiente cálido y acogedor.

El monoambiente cuenta con un diseño funcional que incluye un dormitorio, un baño completo, cocina y un encantador balcón, perfecto para disfrutar de momentos al aire libre. Entre sus comodidades se destaca la piscina, que se convierte en un excelente lugar de esparcimiento durante los días calurosos y es apta para quienes buscan un hogar o una inversión en una de las áreas más solicitadas de la capital.

Con un precio accesible de U$D 85.000, esta oferta representa una excelente oportunidad de inversión en un entorno seguro y de alta demanda. El inmueble se encuentra en disposición frente, lo que garantiza vistas despejadas y un ambiente agradable. No dejes pasar la oportunidad de adquirir este monoambiente en una de las mejores zonas de Buenos Aires.

Nota: Las medidas mencionadas son aproximadas.
Agustina Scalese CPI8928 MGR313
Martillera responsable

LEY 5115: El inmueble es accesible (o no) para personas con movilidad reducida.

¡Llámenos para conocer más en detalle esta propiedad!
Tel: 1124811956
Email: fsintas@girgola.com.ar
Gírgola
gírgola.com.ar

Detalles

Actualizado en diciembre 16, 2025 a 2:42 pm
  • ID: GÍR-194967
  • Precio: USD 85.000
  • Sup. cubierta: 32.00 m²
  • Sup. descubierta: 0.00 m²
  • Sup. semicubierta: 3.00 m²
  • Sup. total: 35.00 m²
  • Orientación: Norte
  • Disposición: Frente
  • Dormitorio: 1
  • Ambiente: 1
  • Baño: 1
  • Cochera: 0
  • Antigüedad: Estrenar
  • Tipo: Departamentos
  • Estado: En venta
  • Dirección Conde 2800 Belgrano
  • Ciudad Capital Federal
  • Provincia Capital Federal
  • Localidad o barrio Belgrano R

Información de contacto

Quiero saber más sobre esta propiedad

Tour virtual

Video

Propiedades similares

Comparar listados

Comparar
Abrir chat